Haute-Savoie > La Clusaz
Charme - vue et ensoleillement (bel114)
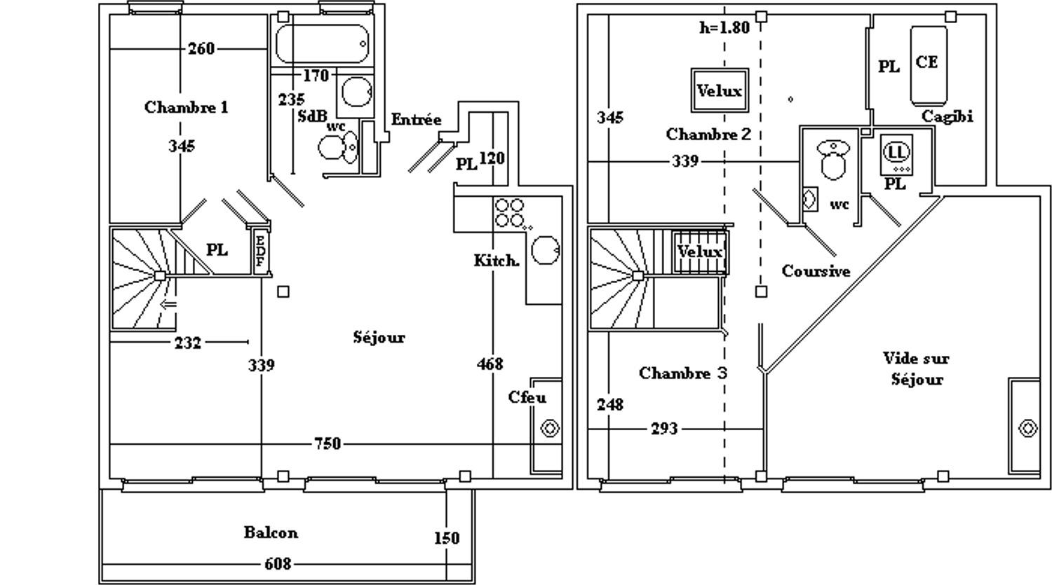
Appartement n°4 de 81 m² dont 25 m²<1,80 + balcon + garage n°2 (25.80 m²) - Situé au 2ème étage - Orientation sud
Composition du couchage:
Etage principal :
- Chambre 1 : 2 Lits en 90 pour 2 personnes ( Possibilité de faire un grand lit de 180)
Deuxième niveau :
- Chambre 2 : 2 Lits en 90 pour 2 personnes ( Possibilité de faire un grand lit de 180)
- Chambre 3 : 2 Lits en 70 pour 2 personnes ( Possibilité de faire un grand lit de 140)
Descriptif complémentaire:
Etage principal : Entrée/Hall avec placard - Salle de séjour (23m²) avec Coin repas : Table et chaises - Coin salon : Canapé, table de salon, fauteuils, cheminée, télévision, baie vitrée accès balcon sud - Coin cuisine : lave-vaisselle, 4 plaques vitro-céramiques, four, micro-ondes, réfrigérateur (224L) - Chambre 1 (9m²) : 2 lits, placard, fenêtre nord vue montagne -Salle de Bains : Baignoire, lavabo, sèche serviettes, wc et fenêtre nord vue montagne.
Etage supérieur : Coursive ouverte sur séjour - Chambre 2 (10m²) : 2 lits, velux - Chambre 3 (7m²) : 2 lits, fenêtre sud vue pistes - wc avec lave mains - Placard avec lave-linge.
Chauffage individuel électrique - Casier à skis - Parking Résidence - Couettes - Animaux non autorisés -Classement **** pour 6 personnes
La prestation ménage de fin de séjour est un supplément tarifaire a commander le jour de votre arrivée. Les draps et serviettes de bains, torchons... ne sont pas fournis.
Classified apartment :
About
Apartment 81 m²
4 room(s) - 3 room(s)
6 persons
1 bathroom(s) - 0 bathtub(s)
Pets Allowed : No
Stationnement : Garage
Reduced mobility access : No
WIFI : No
Exposure : South
Smokers : Non-smoker
Balcony
Terrace
Key collection at the agency
Equipment
Appliances : Washing machine, Dishwasher: 4 Cutlery, Refrigerator, Microwave
Additional equipment
Chimney
Localization
Situation : Close to a shopping center,
Compose your mountain stay has never been easier with Alpissime.
One click booking
Your stay will be confirmed as soon as you finalize your booking
Verified holiday rentals
All our ads are 100% verified by the Alpissime team. Here, no rental scam!
Compose your stay
In the next step, add services and activities and pay up to 4x at no cost.
Practical information
Other travellers also consulted
See similar listings
Charme - vue et ensoleillement (bel114)
Appartement n°4 de 81 m² dont 25 m²<1,80 + balcon + garage n°2 (25.80 m²) - Situé au 2ème étage - Orientation sud
Composition du couchage:
Etage principal :
- Chambre 1 : 2 Lits en 90 pour 2 personnes ( Possibilité de faire un grand lit de 180)
Deuxième niveau :
- Chambre 2 : 2 Lits en 90 pour 2 personnes ( Possibilité de faire un grand lit de 180)
- Chambre 3 : 2 Lits en 70 pour 2 personnes ( Possibilité de faire un grand lit de 140)
Descriptif complémentaire:
Etage principal : Entrée/Hall avec placard - Salle de séjour (23m²) avec Coin repas : Table et chaises - Coin salon : Canapé, table de salon, fauteuils, cheminée, télévision, baie vitrée accès balcon sud - Coin cuisine : lave-vaisselle, 4 plaques vitro-céramiques, four, micro-ondes, réfrigérateur (224L) - Chambre 1 (9m²) : 2 lits, placard, fenêtre nord vue montagne -Salle de Bains : Baignoire, lavabo, sèche serviettes, wc et fenêtre nord vue montagne.
Etage supérieur : Coursive ouverte sur séjour - Chambre 2 (10m²) : 2 lits, velux - Chambre 3 (7m²) : 2 lits, fenêtre sud vue pistes - wc avec lave mains - Placard avec lave-linge.
Chauffage individuel électrique - Casier à skis - Parking Résidence - Couettes - Animaux non autorisés -Classement **** pour 6 personnes
La prestation ménage de fin de séjour est un supplément tarifaire a commander le jour de votre arrivée. Les draps et serviettes de bains, torchons... ne sont pas fournis.
Composition du couchage:
Etage principal :
- Chambre 1 : 2 Lits en 90 pour 2 personnes ( Possibilité de faire un grand lit de 180)
Deuxième niveau :
- Chambre 2 : 2 Lits en 90 pour 2 personnes ( Possibilité de faire un grand lit de 180)
- Chambre 3 : 2 Lits en 70 pour 2 personnes ( Possibilité de faire un grand lit de 140)
Descriptif complémentaire:
Etage principal : Entrée/Hall avec placard - Salle de séjour (23m²) avec Coin repas : Table et chaises - Coin salon : Canapé, table de salon, fauteuils, cheminée, télévision, baie vitrée accès balcon sud - Coin cuisine : lave-vaisselle, 4 plaques vitro-céramiques, four, micro-ondes, réfrigérateur (224L) - Chambre 1 (9m²) : 2 lits, placard, fenêtre nord vue montagne -Salle de Bains : Baignoire, lavabo, sèche serviettes, wc et fenêtre nord vue montagne.
Etage supérieur : Coursive ouverte sur séjour - Chambre 2 (10m²) : 2 lits, velux - Chambre 3 (7m²) : 2 lits, fenêtre sud vue pistes - wc avec lave mains - Placard avec lave-linge.
Chauffage individuel électrique - Casier à skis - Parking Résidence - Couettes - Animaux non autorisés -Classement **** pour 6 personnes
La prestation ménage de fin de séjour est un supplément tarifaire a commander le jour de votre arrivée. Les draps et serviettes de bains, torchons... ne sont pas fournis.
Classified apartment :
Apartment 81 m²
4 room(s) - 3 room(s)
6 persons
1 bathroom(s) - 0 bathtub(s)
Pets Allowed : No
Stationnement : Garage
Reduced mobility access : No
WIFI : No
Exposure : South
Smokers : Non-smoker
Balcony
Terrace

Appliances : Washing machine, Dishwasher: 4 Cutlery, Refrigerator, Microwave
Chimney
Situation : Close to a shopping center,
One click booking
Your stay will be confirmed as soon as you finalize your booking
Verified holiday rentals
All our ads are 100% verified by the Alpissime team. Here, no rental scam!
Compose your stay
In the next step, add services and activities and pay up to 4x at no cost.
Reservation
Enlarged search : we are displaying the closest available dates to your original research
About
Owner : Real estate agency
Ad reference : 1995
Registration number : 007408019081