Savoie > Valloire
3 pièces 6 personnes 3* exposé ouest
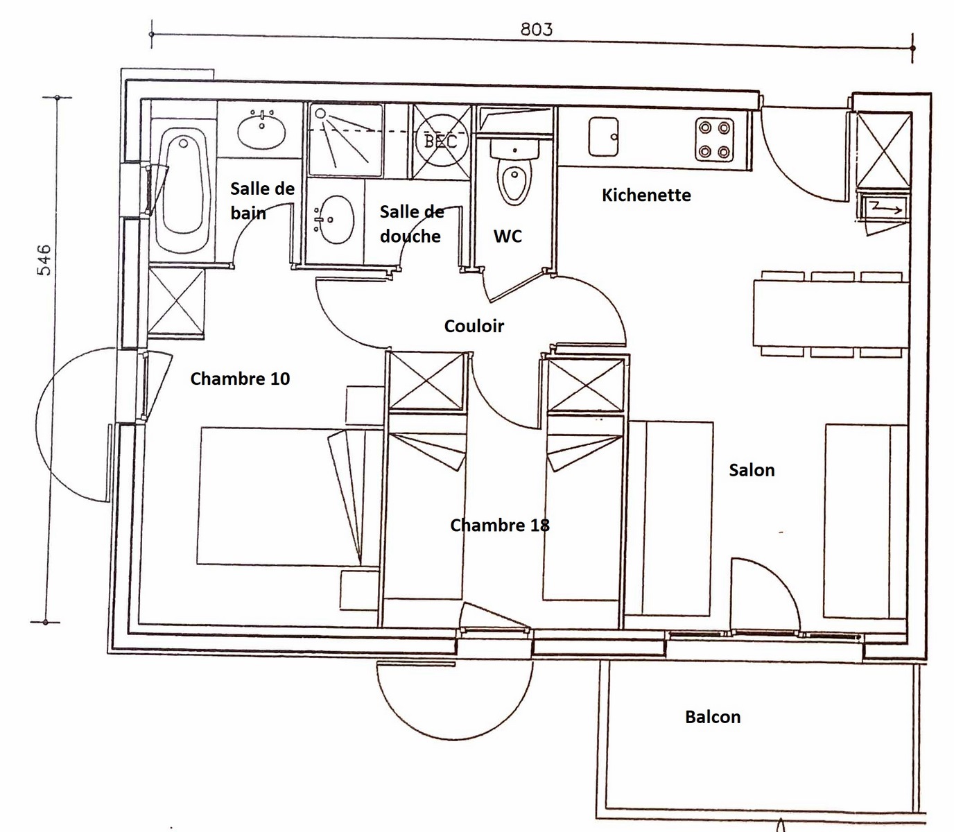
COUCHAGES :
Chambre 1 (9m²/ Nord) : 1 lit double (140cm)
Chambre 2 (6m²/ Ouest) : 2 lits simples (2x80cm)
Séjour (19m²) : canapé gigogne (2x 80cm)
Literie avec couettes (dans les chambres) et couvertures (pour le séjour)
EQUIPEMENTS :
Pièce de vie (19m²/ Ouest) :
- Coin cuisine : mini-four, micro-ondes, lave-vaisselle, réfrigérateur, plaques vitrocéramiques (4 foyers).
- Coin salon : télévision, Wifi gratuit et commun à la résidence.
Salle de bains : lavabo, baignoire, sèche-cheveux.
Salle d'eau : lavabo, douche.
WC indépendant.
SERVICES/OBSERVATIONS :
Animaux refusés. Linge de lit et de toilette non fournis. Ménage de fin de séjour non inclus. Casier à skis. Balcon (5m²/ Ouest) avec salon de jardin. Pas de parking, parking public à 500m. Ascenseur.
Dans le bâtiment Edelweiss (à 160m) : accès à la piscine (gratuit) ; accès au sauna (avec supplément) ; accès à la laverie (avec supplément).
Possibilité de départ de la résidence "skis aux pieds" pour rejoindre la piste des Lutins à 50m (Déconseillé aux débutants).
ATTENTION : Caution par paiement dématérialisé avant votre arrivée.
L'accès Piscine pourrait être fermé ou à usage limité par décision administrative. De ce fait, une éventuelle fermeture ne pourra faire l’objet d'une d’indemnisation.
Appartement classé :
A propos
Appartement 42 m²
3 pièce(s) - 2 chambre(s)
6 personnes
2 salle(s) de bain - 0 baignoire(s)
Animaux Acceptés : Non
Stationnement : Aucun
Accès mobilité réduite : Non
Ascenseur : Oui
WIFI : Wifi Gratuit (dans la résidence)
Exposition : Ouest
Fumeurs : Non-fumeur
Balcon
Terrasse
Récupération des clés dans votre agence
Equipements
Electroménager : Lave vaisselle: 4 Couverts, Réfrigerateur, Micro-ondes
Localisation
Situation : Proche d'un centre Commercial, Proche des espaces enfants, Proche des lieux d'animation,
Composez votre séjour montagne n'a jamais été aussi simple avec Alpissime.
Réservez en un clic
Vos vacances seront confirmées dès que vous aurez finalisé votre réservation
Location PAP Vérifié
Toutes nos annonces sont 100% vérifiées par l'équipe Alpissime. Ici, pas d'arnaque à la location !
Composez votre séjour
A la prochaine étape, ajoutez des services et activités et payez jusqu'à 4x sans frais.
Informations pratiques
D'autres voyageurs ont aussi consulté
Voir les annonces similaires
3 pièces 6 personnes 3* exposé ouest
Chambre 1 (9m²/ Nord) : 1 lit double (140cm)
Chambre 2 (6m²/ Ouest) : 2 lits simples (2x80cm)
Séjour (19m²) : canapé gigogne (2x 80cm)
Literie avec couettes (dans les chambres) et couvertures (pour le séjour)
EQUIPEMENTS :
Pièce de vie (19m²/ Ouest) :
- Coin cuisine : mini-four, micro-ondes, lave-vaisselle, réfrigérateur, plaques vitrocéramiques (4 foyers).
- Coin salon : télévision, Wifi gratuit et commun à la résidence.
Salle de bains : lavabo, baignoire, sèche-cheveux.
Salle d'eau : lavabo, douche.
WC indépendant.
SERVICES/OBSERVATIONS :
Animaux refusés. Linge de lit et de toilette non fournis. Ménage de fin de séjour non inclus. Casier à skis. Balcon (5m²/ Ouest) avec salon de jardin. Pas de parking, parking public à 500m. Ascenseur.
Dans le bâtiment Edelweiss (à 160m) : accès à la piscine (gratuit) ; accès au sauna (avec supplément) ; accès à la laverie (avec supplément).
Possibilité de départ de la résidence "skis aux pieds" pour rejoindre la piste des Lutins à 50m (Déconseillé aux débutants).
ATTENTION : Caution par paiement dématérialisé avant votre arrivée.
L'accès Piscine pourrait être fermé ou à usage limité par décision administrative. De ce fait, une éventuelle fermeture ne pourra faire l’objet d'une d’indemnisation.

Réservez en un clic
Vos vacances seront confirmées dès que vous aurez finalisé votre réservation
Location PAP Vérifié
Toutes nos annonces sont 100% vérifiées par l'équipe Alpissime. Ici, pas d'arnaque à la location !
Composez votre séjour
A la prochaine étape, ajoutez des services et activités et payez jusqu'à 4x sans frais.
Réservation
A propos
Propriétaire : Agence immobilière
Référence de l'annonce : 3368
Numéro d'immatriculation : 733060010744B