Adultes
Vacanciers de plus de 18 ans
Enfants
Vacanciers de moins de 18 ans
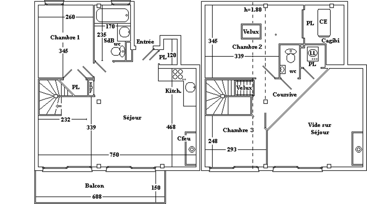
Appart. 6 pers. - La Clusaz
Charme - vue et ensoleillement (bel114)
Créez une nouvelle liste
Ajouter à une liste de favoris
Vous pouvez gérer vos listes de souhaits ici
Attention, nous détectons que vous avez refusé l'utilisation des cookies. Ceux-ci sont nécessaires pour permettre la bonne utilisation du site. Vous risquez de rencontrer des problèmes de navigation. Pour accepter les cookies, videz votre cache puis actualisez la page.
Vous n'avez pas de compte ? Inscription
Votre inscription à notre newletter a bien été prise en compte, nous vous remercions pour votre confiance.
Un email de confirmation vous a été envoyé par Alpissime ([email protected]). Veuillez consulter votre boite mail pour activer votre compte.